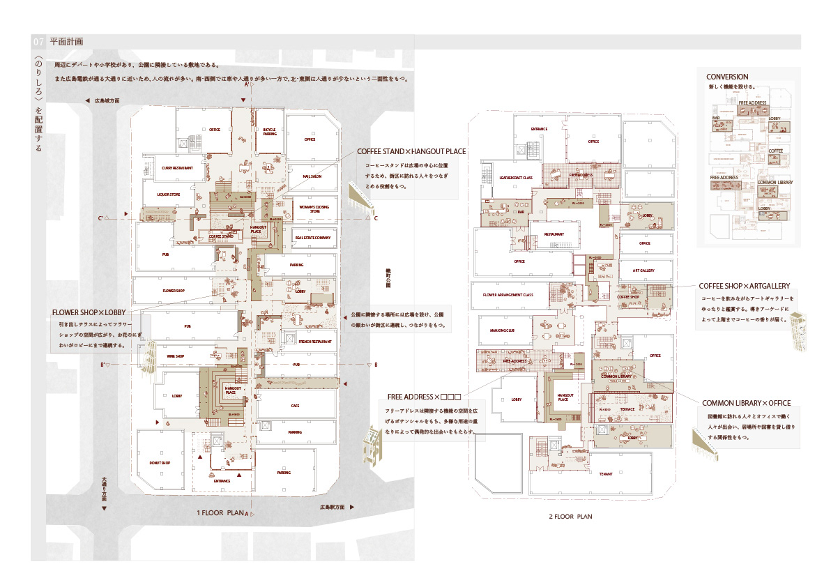
のりしろ街区 都市の空隙を活かした増減築による街区の再編
この作品は、広島市中心部にある幟町12番地の一街区において、空き部屋やスキマなどの空隙を活用し
た増減築を行うことで、住民同士が「のりしろ」のようにヒトの小さな営みやモノ同士をつなぎ、大き
な一つの家族のように都市に暮らすという提案である。再開発による大きな建物の複合化ではなく、既存建物の記憶を残しながら人間的なスケールで職場と住まいとの境界を曖昧にし、多様な出会いや交流を生みだすことが目指されている。これまで街から閉ざされていた内部空間を「のりしろ」により段階的に外部に開放することで、都市で暮らす人々の新たな関係性を構築している点が秀逸である。
た増減築を行うことで、住民同士が「のりしろ」のようにヒトの小さな営みやモノ同士をつなぎ、大き
な一つの家族のように都市に暮らすという提案である。再開発による大きな建物の複合化ではなく、既存建物の記憶を残しながら人間的なスケールで職場と住まいとの境界を曖昧にし、多様な出会いや交流を生みだすことが目指されている。これまで街から閉ざされていた内部空間を「のりしろ」により段階的に外部に開放することで、都市で暮らす人々の新たな関係性を構築している点が秀逸である。
担当教員:広島工業大学 平田 欽也 先生
1/5
2/5
3/5
4/5
5/5